WORK
GRAD PORTFOLIO
INDUSTRIAL DESIGN
ABOUT
CONTACT
Daniel Moreno
WORK
GRAD PORTFOLIO
INDUSTRIAL DESIGN
ABOUT
CONTACT

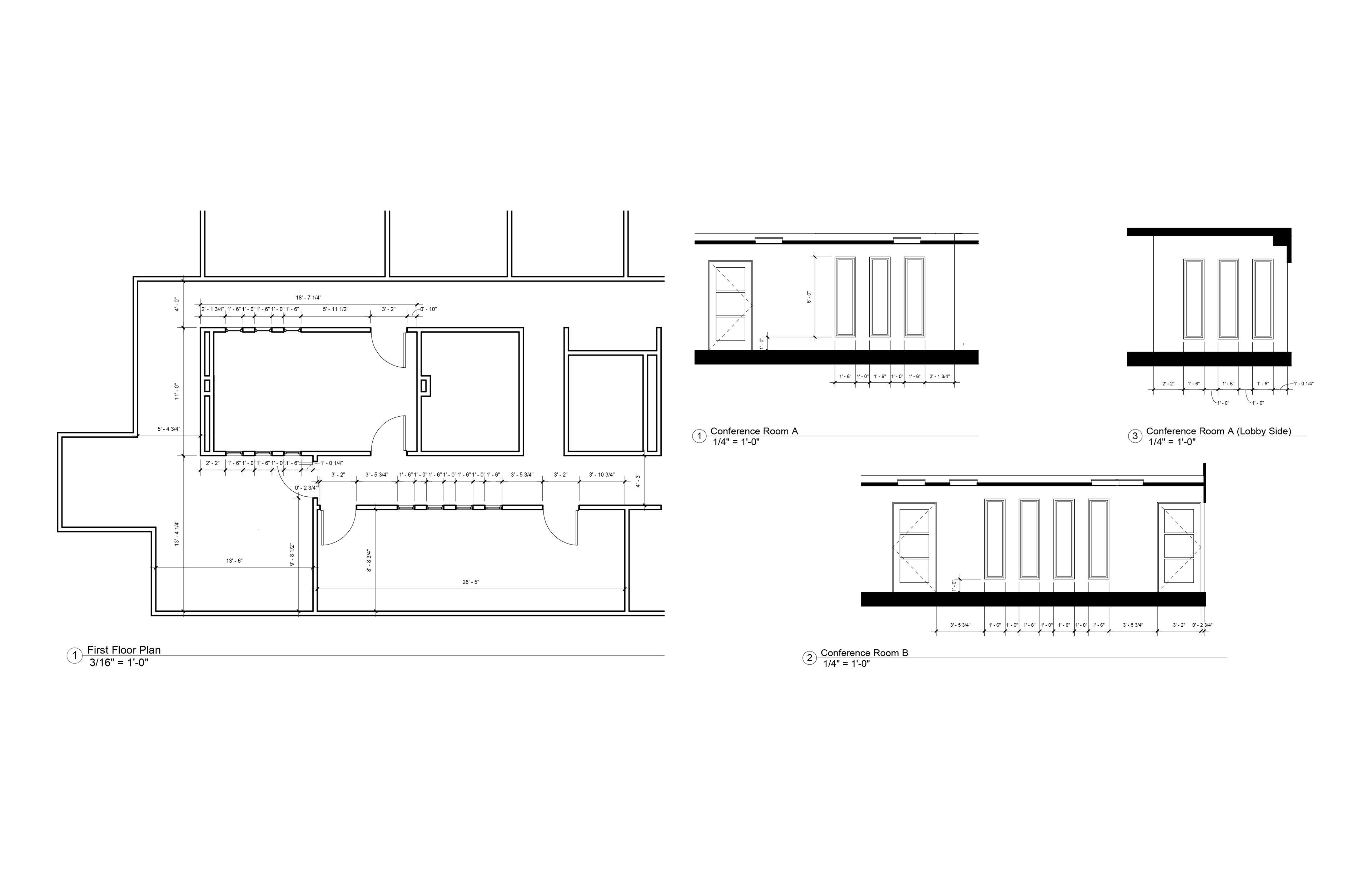
CALVRAY COUNSELING CENTER

↑Back to Top